siège social AMP DEPANNAGES
MARCOUSSIS (91)
Lieu d'exécution :
VILLE DE MARCOUSSIS (91)
Année :
2023
Maître d'Ouvrage :
SCI LE MOULIN A VENT
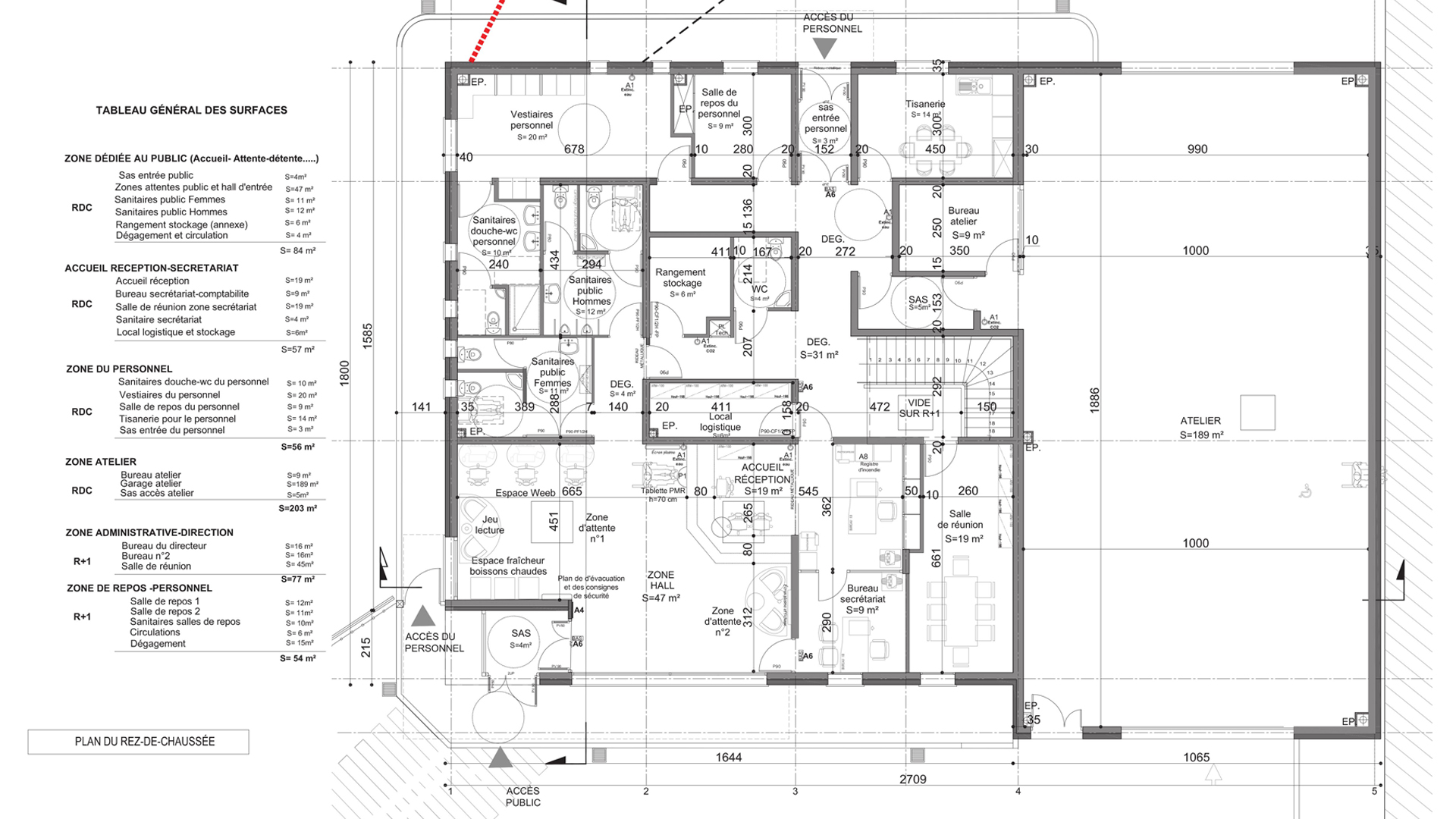
SHON :
339 m²
Coût de l'opération Estimation :
800.000 M € H.T. valeur mars 2023
Comprenant :
- Accueil-Réception
- Locaux Administratifs
- Locaux techniques
- Locaux de stockage
- Places de stationnement dédiées au projet y compris PMR
- Places de stationnements extérieurs pour véhicules électriques
Missions exécutées dans le cadre du projet : Concours - pc